M
U
N
projects
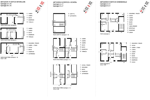
Piano PEEP
Calci (PI), IT
PROJECT TEAM: MUN studio
TYPE: preliminary design
CLIENT: private
DATE: 2010
projects
studio
contacts
news